30 个回答
【2017-3-22更新,插图分别取自《图解红楼梦建筑意象》、《孙温红楼梦绘本》等书,借用了答主崔冲的一张上海大观园蘅芜苑照片,在此致谢】
鉴赏大观园
每每提到旅行,总是有人很鸡汤地说:去哪儿不重要,重要的是与谁同行。我默默地认可啊,但偶尔也觉不尽然。有些地方,也许是去哪儿才是重要的。比如,我想说的大观园。
大概所有红楼梦中人,都有置身体验大观园的欲望。也许景致如何并不太重要,去看看书中描绘的那些个场景、物事,去印证一下书中意境,再肆意意淫角色代入一下,便是一份满足。心态大抵类此。
而这座曹公虚拟的园林,倒也确实还是真有,不但有,而且还有两座。一座在上海,一座在北京。
第一篇 布局
在我们想象中,大观园大概是这样的出尘隐逸的画面:
当然,也可以是这样仙气蕴郁的颜色:
但,其实都不是的。按照书中描述,大观园是没有大面积水面的,第二幅图虽然美是美极,却不是大观园。而第一幅图,其实更像是圆明园写意。
那么,书中的大观园,究竟怎样的布局呢?参照第十七回《大观园试才题对额》所述,宝玉们从正园门进园子,直面翠嶂;穿过曲径通幽处,便是沁芳亭桥;然后跨翠烟桥到潇湘馆;再经蜂腰桥到稻香村;过了荼蘼架,再入木香棚,越牡丹亭,度芍药圃,入蔷薇院,出芭蕉坞,受阻蓼汀花淑;然后,万恶的贾珍出现了,带着他们爬山上盘道,过九折朱栏板桥至蘅芜苑;再南行到省亲别墅;接着走沁芳闸桥,经过山下得幽尼佛寺、林中藏女道丹房,或长廊曲洞,或方厦圆亭,最后失陷在怡红院中;然后,路阻青山,贾珍再次带路转过平坦宽阔大路,又回到了正园门。于是,我们就有了这样一张大观园布局图:
按照书中贾珍所说,自东府会芳园北拐角墙下引来一股活水,“原从那闸起流至那洞口,从东北山坳里引到那村庄里,又开一道岔口,引到西南上,共总流到这里,仍旧合在一处,从那墙下出去”。此图也基本完美体现了全园水系的布局。
参阅嘉庆以来前人的各种大观园图谱,私心以为,这幅大观园布局图,是能比较符合书中的各种情节描述的。虽然仍旧有些瑕疵,比如芦雪庵应是傍山的,若放在暖香坞东侧近岸或秋爽斋北侧或更合适。
好吧,在走进现实中的两座大观园之前,我们再约略估测一下大观园的规模。
先悄悄上一张贾府总图作为参照:
书中有言,那宁荣二府的大门,大略是一箭之地。一箭之地大致为130到150步,每步5尺,乾嘉时每尺为0.31米,如此算来,一箭之地约为200多米的样子。所以,比照上图的两府大门距离,我们大致可以估出,大观园的宽度约300米,长度约500米。这一圈算下来,周长大概有1600多米。考虑到现在的市里比明清时代的里稍长,这长度与第十六回里贾蓉所说“从东边一带,借着东府里花园起,转至北边,一共丈量准了,三里半大……”是吻合的。
好吧,现在可以开始我们的大观园之旅了。
上海大观园,位于淀山湖畔。
先说布局。虽经挖填,上观的水系还是不太符合原著意蕴,场景、建筑布局呢,除了入门处的翠嶂和大观楼,其它与书中所述都呈现较大偏离。我尝试了一下,发现居然无法顺畅走完那条连接潇湘馆、稻香村、蘅芜苑、大观楼、栊翠庵到怡红院的题对额线路。其它诸如凸碧山庄变成凸碧亭、凹晶溪馆和秋爽斋本该临水、体仁沐德殿与大观楼不应分离、滴翠亭化成了旱亭、梨香院无端出现在大观园内等等问题,都让我平添各种莫名强迫症。
再说建筑风格。我一直以为,大观园应该是偏重北方风格并参杂部分江南元素的园林。从怡红院的那种四合院格局到大观楼群的皇家气派,无不透露了这种信息。相较而言,上海大观园的建筑风格便只有浓浓的江南味道:粉墙青瓦,花木扶疏,做工形制,清雅朴素。想来上观的匠工们是把每个建筑群,都当作一个江南园林庭院来精雕细琢的。所以,布局不讲究对称而流溢于自然,设景注重意境清远而不为原著所囿。作为园林,美则美矣,也是我喜欢的。只是,看起来就不像大观园了。
比如,书中说蘅芜苑:“……因见两边俱是超手游廊,便顺着游廊步入。只见上面五间清厦连着卷棚,四面出廊,绿窗油壁,更比前几处清雅不同。”
然而,如果看到的是上图的实景,又哪里能接受这样的蘅芜苑?卷棚清厦、绿窗油壁的没有,主体居然还是两层楼的干活。这里事实上只是一个很清幽的普通庭园。
在我以为,如潇湘馆这样的馆舍,自然该是很有江南味道,而没有确定描述的藕香榭等景,不妨也可以协调以江南风格。如此看来,上海大观园,只是一座借用了大观园很多文化元素的仿古江南园林。
还好,我们还有北观。
我是二十多年前第一次到座落在南菜园的北京大观园的。然后,来了很多次,在很多个季节里。
很爱这幅图这样的盆景般玲珑味道。
从导游图上,第一观感还是水系偏差。个人觉得,园中置湖,最早大概是红学家们对大观园的误解。史大妹子说:“寒潭渡鹤影”,所以,园子里只有一个不大的水潭。当然置湖还有一种可能是经济方面的考虑:划船是可以收费的。
北观园址本是明清两代的皇家菜园,征地后的地块形状并不太理想。所以,怡红院由凸出的东南角,移到相对宽敞的西南角了。但北观设计者还是尽量照顾好了芦雪庵、藕香榭与暖香坞的抱团、怡红院与栊翠庵的南北对接、怡红院与潇湘馆的东西相邻,并按作者意图,把蘅芜院撤得远离怡潇。因此上,北观的布局,比上观要好很多,至少宝玉们题对额时,能够顺次走完那一溜馆苑。所以,觉得北观设计者并没有误解大观园的布局,只是用地条件所限,不得已调转了题对额线路的行进方向。
按卫星地图测算,北观周长也有三里半,与书中大观园面积相当,但山形水系远不如书中丰富,建筑分布也显逼仄。这让我稍微感叹了一把,现在的园林设计师,恐怕是难以企及书中那位山子野的水准了啊。
第二篇 意象
由于有以上各种欲求不满,所以,其实我是很期待将来有谁能够秉持打造87版《红楼梦》电视剧的那种敬业精神与专业素质,按照书中所述的规模、布局和建筑描述,建起一座完美的大观园,我辈能够进去痛痛快快过过瘾。当然目前这是奢望了,现阶段不会有人干这事的,政府也不会。所以,俺们只好先拿着意象图过过干瘾吧。
省亲别墅建筑群,是元春省亲时接受朝觐及驻跸的场所,也是太虚幻境在人间的映像。
整个建筑群包括大观楼、顾恩思义殿、嘉荫堂、含芳阁、缀锦阁等殿阁,既具皇家气象,亦复天上玄宫,称得上“崇阁巍峨,层楼高起,面面琳宫合抱,迢迢复道萦纡,青松拂檐,玉栏绕砌,金辉兽面,彩焕螭头”。
富贵气逼人的怡红院,是富贵闲人贾宝玉的住所。
四合为“院”,怡红院也就是一个四合院。也是大观园里规模最大的居所。
院外绕过碧桃花,穿过竹篱花障编就的月洞门,踏过沁芳溪上的白石板桥,就见粉墙环护,绿柳周垂。院内两边都是抄手游廊相接。院中点衬几块山石,东边种着数本芭蕉,西边乃是一棵西府海棠,其势若伞,丝垂翠缕,葩吐丹砂。那边有两只仙鹤在松树下剔翎。一溜回廊上吊着各色笼子,各色仙禽异鸟。上面小小三间抱厦倚着五间主房,一色雕镂新鲜花样隔扇,悬着一块匾额,上书四字道是“怡红快绿”。后院是满架的蔷薇、玫瑰和宝相花,沁芳溪在这里汇合流出大观园。宝玉自题《怡红快绿》诗云:
深庭长日静,两两出婵娟。
绿蜡春犹卷,红妆夜未眠。
凭栏垂绛袖,倚石护青烟。
对立东风里,主人应解怜。
这“绿蜡”就是那数本芭蕉,“红妆”就是那棵海棠了。
散寄之居,称之为“馆”。所以,我很钦佩曹公的用心细微:这个“馆”字,也颇符合林黛玉的投亲身份。小桥流水,粉墙黛瓦,处处凸显的江南情调,也暗喻黛玉出身姑苏的源流。
本图是从后院的视角看潇湘馆,大门在前端。从院外就可见一带粉垣,内里数楹修舍,为千百竿翠竹遮映。入得门来,便是曲折游廊,翠竹掩映,婆娑玉立;阶下石子漫成甬道,竹影参差,苔痕淡浓。上面小小三间房舍,一明两暗。主房后面便是花园,自紫菱洲分出的一股沁芳溪流由此灌入墙内,绕阶缘屋至前院,再盘旋竹下而出,穿过翠嶂汇入溪主流。后院游廊连接着两间小小退步,乃是闲时茶弈休憩佳处。宝玉也有一诗《有凤来仪》:
秀玉初成实,堪宜待凤凰。
竿竿青欲滴,个个绿生凉。
迸砌防阶水,穿帘碍鼎香。
莫摇清碎影,好梦昼初长。
“苑”是帝王的花园。以苑为居,也暗合薛宝钗的待选秀女往事。
这个香草仙藤著称的蘅芜苑,也是我很喜欢的园子。园子的主山分脉穿墙而过;墙外临水两行垂柳间着桃花,折带朱栏板桥跨水而来;门前一翠樾埭河堤,有云步石梯濒溪。整个院落便是一所清凉瓦舍,一色水磨砖墙,清瓦花堵。入得院来,迎面突出插天的大玲珑山石,四面群绕各式太湖石块,竟把里面所有房屋悉皆遮掩,而且一株花木也无。满目异草,或牵藤,或引蔓,或垂山巅,或穿石隙,垂檐绕柱,盈砌盘阶,或如翠带飘飖,或如金绳盘曲,或实若丹砂,或花如金桂,味芬气芳,非花香之可比。五间清厦连卷棚,四面出廊,绿窗油壁,实在是个清幽可喜的地方。
其实宝玉大爱这些花草,数点如家珍:“这些之中也有藤萝薜荔,那香的是杜若蘅芜,那一种大约是茝兰,这一种大约是清葛,那一种是金簦草,这一种是玉蕗藤,红的自然是紫芸,绿的定是青芷。”所以,他也有《蘅芷清芬》诗赞:
蘅芜满净苑,萝薜助芬芳。
软衬三春草,柔拖一缕香。
轻烟迷曲径,冷翠滴回廊。
谁谓池塘曲,谢家幽梦长。
“斋”的本意就是书房。斋较堂,惟气藏而致敛,盖藏修密处之地,故式不宜敞显。所以秋爽斋充盈着浓郁的书卷气,譬如主屋那壁满满的典籍与宽大的书案,自内而外映衬着贾探春也酷爱读书临帖。
据说探春最爱芭蕉。因此院中也多植芭蕉梧桐,宽枝大叶的芭蕉和梧桐,都映透着探春的豪爽性格。那芭蕉叶宽大,常有夜月听雨的意境;梧桐叶易凋,也有桐剪秋风的萧然。这与探春最终远别的况味,是很相类的。
秋爽斋门前东接蜂腰桥,西连荇叶渚,北邻晓翠堂,隔溪与紫菱洲相望。
重屋曰“楼”。缀锦楼是建在紫菱洲上的一座临水建筑,也是大观园里唯一两层的居所。大观楼侧东阁也叫缀锦,非是一处。
贾迎春出嫁后,宝玉不舍,天天过来“徘徊瞻顾,见其轩窗寂寞,屏帐翛然,……再看那岸上的蓼花苇叶,池内的翠荇香菱,也都觉摇摇落落,似有追忆故人之态,迥非素常逞妍斗色之可比。既领略得如此寥落凄惨之景,是以情不自禁,乃信口吟成一歌曰:
池塘一夜秋风冷,吹散芰荷红玉影。
蓼花菱叶不胜愁,重露繁霜压纤梗。
不闻永昼敲棋声,燕泥点点污棋枰。
古人惜别怜朋友,况我今当手足情!”
景致是极美,也极伤感。
都说是“村”了,稻香村自然是一副山野田园农家味儿。而李纨也秉持一副与世无争的村姑心态。
小院门外是一带黄泥筑就的矮墙,墙头皆用稻茎掩护。杏花开放时节,数百株喷火蒸霞一般灿烂。院里数楹茅屋茆堂,纸窗木榻,一洗富贵之气。院外是由桑榆槿柘各色树稚新条转折编就的青篱。篱外山坡下,阡陌土井,分畦列亩,佳蔬菜花,漫然无际。好吧,我也起了归农之意了。且看颦卿捉刀歌功颂德的《杏帘在望》:
杏帘招客饮,在望有山庄。
菱荇鹅儿水,桑榆燕子梁。
一畦春韭熟,十里稻花香。
盛世无饥馁,何须耕织忙。
“坞”是指四面高中间凹下的地方。车子前高后低名“轩”,取轩轩欲举之意,宜置高敞,以助胜则称。
所以,暖香坞窝在山坳里,而蓼风轩挑在高处。坞所处的封闭地势,也大致折射出主人贾惜春的避世情结。书中关于惜春住处有三种说法,入园的时候说是蓼风轩、结社的时候又道是藕香榭。窃思无论轩榭,均为开敞建构,是无以安寝的。所以,此二处应该都是暖香坞的附属建筑。
暖香坞门前是一条夹道,左右有过街门楼,其上分别镌以“穿云”和“度月”。由于暖香坞紧邻稻香村,若自稻香村逶迤行来,因有此门楼在,穿越门楼时,便有一种从田园乡村进到城中的意境,也算佳妙。
“庵”是出家女尼修行之所。
所谓“栊”,有用笼子关起来赏玩的意思,用以描述庵主妙玉的生活实境,也算契合。
书中提到栊翠庵的场所,只有山门、东禅房和耳房。其实栊翠庵最耀眼的就是那些红彤彤了。从画面看起来像枫叶,其实应该是宝玉数次求取的红梅。
第三篇 景物
关于建筑外形,北京大观园里好些是很到位的。我们就从园门走起。
书中原文是:“只见正门五间,上面桶瓦泥鳅脊;那门栏窗隔,皆是细雕新鲜花样,并无朱粉涂饰;一色水磨群墙,下面白石台矶,凿成西番草花样。左右一望,皆雪白粉墙,下面虎皮石,随势砌去,果然不落富丽俗套。”
我们看到,实景大门形制也是五间。桶瓦泥鳅脊不知道是啥,意象图看着是歇山顶,实景是硬山顶,稍嫌简陋。
翠嶂之曲径通幽处,“见白石碐嶒,或如鬼怪,或如猛兽,纵横拱立,上面苔藓成斑,藤萝掩映,其中微露羊肠小径”,倒也符合原味。
亭者,停也。所以亭憩游行也。
“亭子四面局势游廊曲桥,盖造在池中水上,四面雕镂槅子糊着纸。”书中滴翠亭是潇湘馆附近的一座水中之亭,实景却与潇湘馆相隔甚远,而近于怡红院。不过单论外形,实景图与意象图,简直就是一样一样的啊。
书中说:“忽闻水声潺潺,泻出石洞,上则萝薜倒垂,下则落花浮荡,说着已到了花淑的萝港之下,觉得阴森透骨,两滩上衰草残菱,更助秋情。”这是一处营造世外桃源的置景意境。
在实景中,这个路阻贾政的萝港石洞大假山,个头偏小了点。行人通过有富余,元妃的船却是一定通不过去的。
关于凹凸两处,书中湘云有段妙论:“这山上赏月虽好,终不及近水赏月更妙。你知道这山坡底下就是池沿,山坳里近水一个所在就是凹晶馆。可知当日盖这园子时就有学问。这山之高处,就叫凸碧;山之低洼近水处,就叫作凹晶。这‘凸’‘凹’二字,历来用的人最少。如今直用作轩馆之名,更觉新鲜,不落窠臼。可知这两处一上一下,一明一暗,一高一矮,一山一水,竟是特因玩月而设此处。有爱那山高月小的,便往这里来;有爱那皓月清波的,便往那里去。”
可知这两处,都是赏月佳处。
实景水边的凹晶溪馆,形制绝类意象图。
高耸山头的凸碧山庄,外形气场的相似度也不遑多让。只是栏台空间不足,设宴的干活是万万做不到了。
嘉荫堂就稍嫌简陋了。一般认为,嘉荫堂是归属省亲别墅建筑群。北观对此不予支持。
其实支持不支持问题都不大,只要能把嘉荫堂放在凸碧山庄的山脚下,就可以了。因为,那年的中秋晚宴,便是先在嘉荫堂茶歇,再上山到凸碧山庄晚宴的。这项,北观做得很到位。
纵观全园,沁芳亭桥是造型最美的桥,没有之一。清客们便引欧阳公《醉翁亭记》中的“有亭翼然”以感叹。
可惜实体桥凝重得很,飘逸不起来的。如果说这是沁芳闸桥,那我是认可的。惜乎非是。
宝玉那著名的“绕堤柳借三篙翠,隔岸花分一脉香”即题于此,所以,岸边的垂柳是很应景的。
省亲别墅意象图。
实景大观楼。
顾恩思义殿。这里即是元妃用以朝觐驻跸之所在。
含芳阁。
缀锦阁。
原先题写“天仙宝境”的玉石牌坊。元妃惶恐,换以“省亲别墅”。
整个省亲别墅建筑群称得上是“琳宫绰约,桂殿巍峨”的。
芦雪庵是大观园里另外一处具有田园风光的建筑物。与稻香村不同的是,它是临水而建的水边农舍,推窗即可垂钓:“原来这芦雪庵盖在傍山临水河滩之上,一带几间,茅檐土壁,槿篱竹竹牖,推窗便可垂钓,四面都是芦苇掩覆,一条去径逶迤穿芦度苇过去,便是藕香榭的竹桥了。”
实景图中左侧那栋小屋便是芦雪庵。临水是临水了,傍山是傍不上了,加之没有芦苇,白白辜负这个名字。而且,湖中的喷泉……我最讨厌喷泉了。因为古典园林肯定没这东东嘛。
右侧那座建筑便是藕香榭。
榭者,借也。借景而生者也。或水边,或花畔,制亦随态。
也就是说,藕香榭的形状,并无确定。好吧,继续看书:“原来这藕香榭盖在池中,四面有窗,左右有曲廊可通,亦是跨水接岸,后面又有曲折竹桥暗接……”这么看来,这个藕香榭不止包含水榭,还有水亭子、曲廊和曲折竹桥。实景的藕香榭若能如意境图那般添几个亭子,就圆满了。
何以这么说呢?因为那年螃蟹宴,便摆席在藕香榭。贾母欣然来赴宴,说道:“我先小时,家里也有这么一个亭子,叫做什么‘枕霞阁’……”所以,藕香榭是一定要有亭子的,而且,可以不止一个。
藕香榭螃蟹宴。
红香圃是宝玉与姐妹们烤鹿肉的地方。
实景呢,三间门面是没错,可是说好的敞厅呢?
第四篇 外观
好吧,开始穿堂入院了。
就从四丫头的暖香坞开始吧。
我一直非常喜欢暖香坞,便是因为深陷山坞的收敛隐逸与临水过街门楼的开阔,还有那个登高的蓼风轩。
暖香坞的垂花大门。
这过街门楼,简陋得让人有点失望。
好吧,这里默默吐槽一下,暖香坞应该也是临水建筑才是。
再看看二丫头的紫菱洲。
所谓“洲”,便是处二水中分之意。沁芳溪便是在紫菱洲分成两股东去,其一流经潇湘馆,直到怡红院方才汇主流为一处,流出园外。
紫菱洲入口的垂花门。
缀锦楼的实体建筑较之意象图更精彩一些。其实缀锦楼面积颇大,贾母亦曾带着大伙儿游宴于此。
然后是李纨的稻香村。稻香村被元妃赐名“浣葛山庄”,这个名字大概是没几个人想得起来了。
书中说:“一面走,一面说,倏尔青山斜阻。转过山怀中,隐隐露出一带黄泥筑就矮墙,墙头皆用稻茎掩护。有几百株杏花,如喷火蒸霞一般。里面数楹茅屋。外面却是桑、榆、槿、柘、各色树稚新条,随其曲折,编就两溜青篱。篱外山坡之下,有一土井,旁有桔槔辘轳之属。下面分畦列亩,佳蔬菜花,漫然无际。”
我看了,也有归农之意。晴耕是不干了,雨读我还是会的,雪夜灯下抱着火炉读书,那是怎样的乐趣?
青山斜阻是没有了的。但菜地是有。至于这个莫名其妙的亭子是哪来的,我也是搞不懂。
招摇的酒旗倒是也在。“红袖织绫夸柿叶,青旗沽酒趁梨花。”都说的是滴翠也似的青旗,所以酒旗应该翠绿的会好看一些。看宝玉题的“新涨绿添浣葛处,好云香护采芹人”那联,说明稻香村该有满满的绿色。
可是,稻香村依然未洗富贵气,因为居然不是茅屋……
接着该说栊翠庵了。
在书中,栊翠庵应该是隐在山坳之后的。所以,那个大雪天,宝玉求取红梅时,是需要顺着山脚转了过去。当然,尚未转过去就闻到寒香扑鼻了。北观的栊翠庵,就没法这么隐逸了。
栊翠庵的山门。
山门内的红梅倒也都在,十数株,分量也足。所以,宝玉想来不会寂寞。只是我来的季节,虽是隆冬,梅花依旧未放。
第五篇 内饰
秋爽斋、蘅芜苑、潇湘馆和怡红院四处,是要细细说的。
先说三姑娘的秋爽斋了。
秋爽斋与晓翠堂相勾连,那晓翠堂,便是贾母两宴大观园、金鸳鸯三宣牙牌令、使劲欺负刘姥姥的所在了。
实景的秋爽斋,是一个挺乱的格局。不但这个大门朝向尴尬,而且好像还被公园办公征用了一部分。
当然,其实原著对秋爽斋的格局、建筑均未置词,所以,怎样的格局都是说得过去的。
因为刘姥姥的出色表现,晓翠堂如今是她老人家流连的地方了。
秋爽斋是一明两暗三间房。
依书中描述,上面这幅意象图,很完美:“探春素喜阔朗,这三间屋子并不曾隔断。当地放着一张花梨大理石大案,案上磊着各种名人法帖,并数十方宝砚,各色笔筒,笔海内插的笔如树林一般。那一边设着斗大的一个汝窑花囊,插着满满的一囊水晶球儿的白菊。西墙上当中挂着一大幅米襄阳《烟雨图》,左右挂着一副对联,乃是颜鲁公墨迹,其词云:烟霞闲骨格,泉石野生涯。案上设着大鼎。左边紫檀架上放着一个大观窑的大盘,盘内盛着数十个娇黄玲珑大佛手。右边洋漆架上悬着一个白玉比目磬,旁边挂着小锤……东边便设着卧榻,拔步床上悬着葱绿双绣花卉草虫的纱帐。”
实景的大布局也是相似的。西间还有一副花轿,大概是“千里东风一梦遥”用的。只是,三姑娘有无数的书籍典册,实景里尽付阙如。
好吧,到宝姑娘闺居去看看。
在北观里找蘅芜苑,是一种邂逅,一不小心就不期而遇了。
好吧,看到门口的“冰棍”字样,是不是有一种不能忍俊的喜感?
院里太湖石堆砌的假山确实很宏大,几乎把前院塞满,好吧,再抄一下书啊:“忽迎面突出插天的大玲珑山石来,四面群绕各式石块,竟把里面所有房屋悉皆遮住,而且一株花木也无。只见许多异草:或有牵藤的,或有引蔓的,或垂山巅,或穿石隙,甚至垂簷绕柱,縈砌盘堦,或如翠带飘摇,或如金绳盘屈,或实若丹砂,或花如金桂,味芬气馥,非花香之可比”,确实就是这个味儿。太拥堵了,看了心塞,难怪连贾政都不喜欢。
谁如果告诉我说蘅芜苑清雅,我跟谁急。
当然,如果换个季节,同样角度同样场景,好吧,我承认蘅芜苑是这个味道。而且,甚至认为,北观里的蘅芜院,比意象图还要美。
那个折带朱栏板桥,倒也是有的,只是所处方位自然是不对的了。蘅芜苑呆错地方了,桥又岂能独善?所以,原先这桥应该跨越沁芳溪,现在就生生挖个池塘,让这个桥做个无用功,好歹算是有所跨越。另外,说好了是板桥,这桥显得太富贵、太重了一些,失却了轻灵样儿。
好吧,看看蘅芜苑的室内。
以贾母游历蘅芜苑的观感,蘅芜苑就上图这几样家什儿,显得清静得不像女孩儿的感觉。所谓“极简主义”,大概就类此吧。书里描述道:“……顺着云步石梯上去,一同进了蘅芜苑,只觉异香扑鼻。那些奇草仙藤愈冷愈苍翠,都结了实,似珊瑚豆子一般,累垂可爱。及进了房屋,雪洞一般,一色玩器全无,案上只有一个土定瓶中供着数枝菊花,并两部书,茶奁茶杯而已。床上只吊着青纱帐幔,衾褥也十分朴素”。
居所的清冷、蘅芜的芳香,便是宝钗的“冷香”招牌,在蘅芜院内饰里,体现得淋漓尽致。甚至连待客的陈设都不足。
实景中,这些非是青纱的布幔和各色家具都是多出来的,就算薛姨妈来访,也断没把这些带来的道理。
博物格啦啥的,也不是宝姐姐该有的。当然,作为游览点,屋子里太过空旷也是不合适的。只索罢了。
终于要去潇湘馆了。
“忽抬头看见前面一带粉垣,里面数楹修舍,有千百竿翠竹遮映。”
所谓龙吟细细、凤尾森森,潇湘馆之盛,当然在那片竹林了。所以,一开始就让人很期待。先看大门:
大门这种大红大绿的俗配,在这里觉得,唯此为宜啊。
书中道:“入门便是曲折游廊,阶下石子漫成甬路”。所以,实景中入门左转是游廊,直行便是竹林卵石甬道,那句话本来说的就是两件事。
正屋匾额“有凤来仪”,对联“宝鼎茶闲烟尚绿,幽窗棋罢指犹凉”。这种绿幽幽的清爽,很让人欣怡。
潇湘馆后院的游廊及两间退步。这些都做得很到位。院子里空有沟壑,却无流水。按书中提及,沁芳溪分流从后院入墙,绕阶缘屋至前院,盘旋竹下而出,可是潺潺流水夹杂竹叶轻响的。
后院的小清静,很让人喜欢。
好吧,回到室内。
潇湘馆也是一明两暗,大概布置如图,就四个字形容:小巧雅致。
呵呵,其实我大爱暖阁。冬日里倚靠着懒懒地晒着暖阳读着书的感觉。
东间摆设琴台和书案。
西间的床具与暖阁。
可惜,在实景中,西间的暖阁没有了,床挪到东间去了,各种移动,显得颇为凌乱,有欠雅致韵味。摆设不是越多越好的好吗?当然,刚才说了,此病蘅芜苑更甚。
最后该到宝二爷的怡红院了。
“一径引人绕着碧桃花,穿过一层竹篱花障编就的月洞门,俄见粉墙环护,绿柳周垂。贾政与众人进去,一入门,两边都是游廊相接。院中点衬几块山石,一边种着数本芭蕉;那一边乃是一颗西府海棠,其势若伞,绿垂碧缕,葩吐丹砂。”
怡红院就是一个四合院。很标准的四合院。院子正中一尊太湖石,西北角海棠,东北角芭蕉。
北观的怡红院,大致也是一个四合院。透过大门,正对着院中的太湖石。
冬日里的怡红院。院子里怡红快绿的芭蕉和海棠,都是按书中位置种植的。二十年前,是有的。如今是否仍在?
好吧,左侧这株是不是海棠,我不知道,右侧芭蕉已付阙如。
白石板桥在怡红院前的西南侧,方位不对。月洞门移到了怡红院内,也不是竹篱花障所构了。蔷薇架和碧桃花……反正我也认不清了,就算都有吧,花架是没有了。
关于怡红院主屋,先得说抱厦。抱厦这玩意儿呢,在书中多处院落出现。啥叫抱厦呢,就是指在原建筑之前或之后接建出来的小房子。我们在前面那张怡红院意象图里可以看到“小小五间抱厦”字样,这个标注是错的。五间是主屋,抱厦却只有三间。下面这张图,清楚展示了抱厦与主屋之间的结构联系。顺带,也用红线标出贾政游览怡红院的线路,还用蓝线标出刘姥姥蛮闯怡红院的醉卧线路。颇为有趣。
书中说:“贾政等走了进来,未进两层,便都迷了旧路,左瞧也有门可通,右瞧又有窗暂隔,及到了跟前,又被一架书挡住。回头再走,又有窗纱明透,门径可行;及至门前,忽见迎面也进来了一群人,都与自己形相一样,——却是一架玻璃大镜相照。及转过镜去,益发见门子多了。”上图大致便是这个味道。
看到一波波人都在怡红院主屋里迷路,便勾起我对这个用各种摆设物营造的“迷幻空间”的兴趣。
实景中,主屋前面也确实有多出那么一片拱起的屋檐,外表看,极似抱厦。由于抱厦是在主屋之外接建出来的,所用梁柱,自然是与主屋分开的。上图中看得很清楚,两者之间,是有走廊隔开的。
但我们从下面这张实景图看,主屋抱厦之间并不存在走廊,是连成一气的整个儿的建筑。所以,怡红院只是屋顶做成抱厦的样儿,只是一个假抱厦。
怡红院内装饰如何呢?
好吧,让我继续抄一回书吧:“原来四面皆是雕空玲珑木板,或“流云百蝠”,或“岁寒三友”,或山水人物,或翎毛花卉,或集锦,或博古,或卍畐卍寿,各种花样,皆是名手雕镂,五彩销金嵌宝的。一隔一隔,或有贮书处,或有设鼎处,或安置笔砚处,或供花设瓶、安放盆景处,其隔各式各样,或天圆地方,或葵花蕉叶,或连环半壁。真是花团锦簇,剔透玲珑。倏尔五色纱糊就,竟系小窗;倏尔彩绫轻覆,竟系幽户。且满墙满壁,皆系随依古董玩器之形抠成的槽子。诸如琴、剑、悬瓶、桌屏之类,虽悬于壁,却都是与壁相平的。”
西次间的室内镜壁。就是刘姥姥撞了个头晕的地儿。镜壁那边是明间,可以隐隐看到对面东次间的屏风。西次间的家具摆设是不对的,因为这里就是夜宴的场所,需要卧榻的啊。
实景中镜壁被一扇穿衣镜简单替代了。
房门入口处油画。刘姥姥使劲打招呼的姑娘。
好吧,看实景,是一个美女屏风。这女孩儿照原著应该挂在墙上的。反正画中女孩儿的年龄偏大,想来不是宝玉的菜。
群芳开夜宴餐具陈设。右侧西边壁上的那艘西洋自行船,就是宝玉一直担心会把黛玉载走的那货……
好吧,看看实景。满墙壁的瓶子。这没问题。
这间应该是群芳闹腾的地方,可是,没有床榻,是没地儿闹腾的。
这个角度可以看到三人所在的西次间以及西稍间的宝玉卧房。可惜无法进去,暖阁和后间小屋就看不着了,也不知道有没有。
再加上前面凑合算抱厦的三个小间,怡红院的主房,房间大数上还是没有问题的。但可能是面积偏小、抱厦虚化以及隔断、屏风、镜壁等的摆放不完备,幻化空间的效果并未达到,迷路的状态,是不会发生的。
第六篇 结语
“衔山抱水建来精,多少工夫筑始成。天上人间诸景备,芳园应赐大观名。”
曹公在《红楼梦》里,给后人构建了一座融汇帝王苑囿与江南园林风华于一体的人间仙境。尤其是宝黛们入住之后,诗文荟萃,丽景佳绝,蔚为大观。而作者用语言文字创造出来的这份鸿篇巨制,在中外文学史上,可谓空前绝后,内中韵味,也当欣赏不尽的。
梦中人,同去。约吗?
附录、其它意象图
以下这些意象图,有些不是大观园的,送给喜欢的诸位朋友。
太虚幻境。
贾氏宗祠之一。
贾氏宗祠之二。
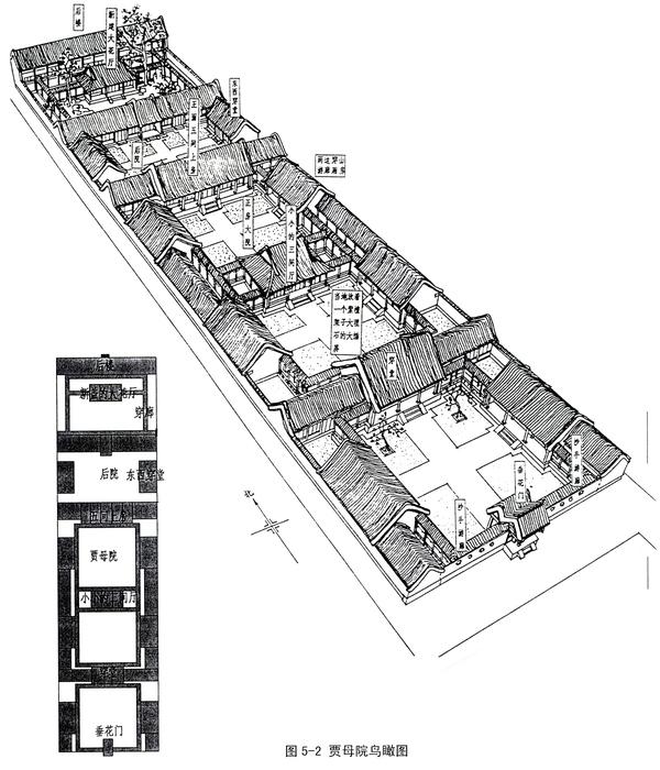
贾母院之一。
贾母院之二。
贾母院主屋陈设。
周日来填坑。这个问题需要对红学有研究的人来答,个人只是爱好,仅负责贴图。
北京的大观园经常路过,一直没有进去。因为有免费票1月3号去上海的转了一圈。当时以为是拍摄原址,所以游览的过程更多期待,想回来重看一遍87版做印证。后来查着好像不是,就算补全心中的爱好吧。
首先抱怨交通,太偏了,在青浦的淀山湖上。如果自驾前往,时间充裕才方便,周围的淀山湖、朱家角都可以转转。我是坐车去的,临时在松江站下车倒了一个多小时的长途公交才到,已经快12点了,下午还要赶去上海,行程很紧张。松江站旁边就是醉白池公园,也没时间去看。
好吧,回正题。选在冬天去,实在是对芦雪庵联诗吃鹿肉印象太好了,可惜当天连雨都没下。
先上景点分布,标的并不全。
下车后里面也有别的景点,走向大观园时候已经逐步把自己代入到园林的感觉了,这点很好。不像是在马路边的吵闹。
一路是这个样子的。
来到太虚幻境的牌楼,其实还在门外。
后面照壁的正面就不贴图了,来张背面的。我太喜欢斜着拍了,见谅。
其实人物的造型不是很喜欢。
门口有卖手绘游览图,没有买。就想信步而行,任意所之。换票入园后迎面假山。
右转走起,前方有亭有桥。可惜正当中午时分,有人在用餐。
走进发现是沁芳亭啊,大观园里最喜欢的一个名字。果断走上去。
过桥后开始看建筑了。是哪里呢?
哦,体仁沐德。好官方的名字,后来没改掉么?
进院,
入室。
虽然是很政治的地方,屋里空间还是有限。参观古代的民居也大多这样,比现在的厅堂要小。
这个船有印象不?就是宝玉闹着要毁掉的吧,我感觉书中最有真性情的地方之一。
不喜欢这里,虽然照片不少,还是顺右侧角门出去吧。
后面豁然开朗,好一派水。
好吧,其实拍的还是建筑。
随意走上小道。
一墙之隔,不知是哪个园子。
草木山石都很好。
各种花木,假山下面依稀的流水,比较主观就不上图了。最喜欢小桔子和廊顶的落叶。
还有一座二层小楼。
比较大气的居处啊,上答案。
这是门外照的。第一个就是蘅芜君的地方,很欣喜。虽然不够喜欢她,但当然多看看。
观看左右摆设后,上楼。
吓一跳。
依稀当日模样。没人管理,可以跨进去的,不提倡啊不提倡。我只是在外边看,欷歔感触。从此不再是看环境,感觉入了大观世界。
红烛依然。
推窗见假山,二楼的视界超好。
旁边有书房等几间小室,摆放书桌博古架。
沿着走廊步下假山。
不舍离去。
虽然有路线指示,还是靠边走吧,别落了景点。走入小径。
小门的样式蛮俏,可凝碧是哪里?第一时间想到的是蜀山剑侠,呵呵。
进来是一个小小的院子。
赫然是绛珠旧处。
下面的石兄莫不神瑛侍者真身?
不用猜,旁边必是黛玉寄居了。
没按照指示去潇湘馆,来的居然是潇湘馆旁门,机缘很好啊。
先沿边走,各种院墙装饰不表,此地自然是多竹。
首先是秀玉轩,黛玉会客之所。中间为作诗会客,右为棋室,左边是书房。
是不是很小?
再来另外的房间,布置稍显杂乱。葬花的篮锄,休息的榻。那些硬币是什么鬼?
琴弦已断,书桌如昨。
虽名梨花春雨,院里仍是竹子。
有凤来仪的牌匾当然要来一张。
感伤的来了,总是探窗一望,猝不及防。想见焚稿时的悲怜。
出去缓缓,有些压抑。
后边一大片竹子,总感觉有些事发生在这里,可惜没有标识。
出正门,看到藕香两个字,是几妹妹的居处来着?
87版里紫菱洲的歌很好听。是二丫头的。
迎春出阁,大观园逐渐风流云散了。回眼望去,在水中有些孤独无依。
四妹妹的暖香坞,布置得果然很清寂。
配角的住所都狭促,和宝黛没法比。毕竟书里描写也少,不便生造。
看看探春的,秋爽居士应该气象不同吧。
屋里的来一张,倒没有太多陈设。
院子也不算太大,外侧的芭蕉是有的。
蓼风轩的地方很大,没记起有什么典故。
时间不早,来到点心铺。
地方很大,感觉没利用好似的。屋内的电灯请忽略,可怎么像客栈?
虽云竹篱茅舍自甘心,确实简朴的有点过了。
在此悲催了一下。在前边慢慢看时,涌起很多感触想写成诗,很多小词句临时记在手机上,准备回去整理。然后pia的掉地上,全部没保存。整个人都不好了。后边的就有些草草。
喘一口气继续,到凹晶馆。寒潭渡鹤影的地方当然不能忘,虽然不是中秋夜。
馆后的树木很多,维护的不够好。对应的凸碧好像也不足观,路过。
按书上的,凹晶馆联诗旁就是栊翠庵,比较期望的地方。
刚有张照片总上传不成功,后面简单点吧。
栊翠庵有佛唱声传来,进去看已成常见可以烧香的场所了,可能不要钱。但和妙玉的气质差太远了,不喜欢。院门的匾额字体也不搭配,宁可用弘一大师晚年的书法也好啊。
对联不错,好像原著无载。上下联是不是反了?
姑娘们,怡红院到了。
院子里也不空旷。
只有绿,没看到怡红。
千红一窟这么惊悚的地方也在里面,图就免了吧。
寿怡红的喜宴是书中正热闹的时候。离近看的话,肤色不太好。
还是喜欢两三小聚的相契于心。话说宝钗补线的情境怎么没有。
去看久盼的芦雪庵,一直以为不当在水边。
和栊翠庵是两大失望,在心中是最洁净的地方,结果不过尔尔。
下边是一直没上传成功的栊翠庵内,怎么跑这来了。
其余的牡丹亭、滴翠亭、红香圃都不是宣传重点,且略过。
丹凤榭远景,其实进去也不错的。
下午1点半,在戏台处有轻喜剧表演。吴语很好听,剧情无足观。
旁边屋子里有各种小塑像,感觉是幻境曲演红楼梦的地方,开发的不够好,没有十二钗仙册。
既然栊翠庵没有妙玉的仿真,必须在这里来一张。
各种塑像网上多有,不赘。塑像的通病是黛玉和宝钗的脸型差不太多,不够分明。园子里没有湘云的居处,唯这里有个醉芍药的塑像,可惜太差啦!湘云虽然豪迈也不至于平躺吧,而且是躺在平板石桌子上,太没意境。太丑无颜上图!
剩下就是建园子的缘起了,大观楼。
几进的院子里各种建筑都不错,后边那个是顾恩思义楼,于是用山石挡住。
毕竟是主建筑,里面富丽堂皇。
撤步出来,省亲别墅太牌楼。远处隔水相望的就是丹凤榭。
好像之前见过的很多牌楼正反面题字不同,这个是一样的。
再一绕就回到假山,曲径通幽处。整一圈很圆满了。
总共转了约莫两个小时,印象还是不错的。在此按我走的路线串了一下,也是给自己留个记忆。北京的貌似更大一些,择时间再去吧。虽然时值冬令,拜气候之赐,花草还是开的不错,这应该是比北京好的地方吧。
和书中试才题对额比照了一下,园子的布置不是很符合。要说改进的点呢,希望在书里园子里某些大事的发生点相应做个标记,方便游客同好理解情节。所幸闲逛时人不多,只是有一段总有东北口音伴随左右,其实我就是河北人,可是听到方言很容易出戏的好嘛。
每个点仅选了几张图做个引导,究竟还是实地感受来得才真切。很多人会因为和心中的美好印象差距太大而不满,其实完全不必。我觉得大观园就和居住其中的女儿一样,都是最好存在于念想中的,强要落实不免着相,只要能带来感动就够了。实地只是提供一个落脚点,更多的是靠脑补才能飞起来的。